

































Инсталляция с унитазом комплект 5 в 1 Teymi F16214 унитаз подвесной безободковый Helmi Pro Vortex кнопка черная/хром
Доступно для заказа 100 штук
Воронеж
Самовывоз сегодня бесплатно
В пункте выдачи 26 ноября от 1 ₽
Доставим сегодня от 390 ₽
Воронеж
Воронежская обл., п. Солнечный, ул. Парковая, 5
В наличии 1 шт.
Воронеж Отрадное
Воронежская обл., Новоусманский р-н, п. Отрадное, ул. Автодорожная, 11
В наличии 1 шт.

Описание
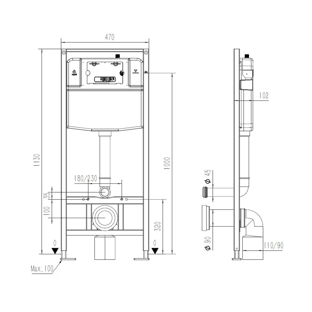
Комплект «Готовое решение» для установки инсталляции с подвесным унитазом: -- инсталляция TEYMI AINA 55 T70035 – монтажная рама из цельного стального профиля прямоугольного сечения, позволяющая выдерживать нагрузки до 400 кг. Габаритная ширина рамы 470 мм; -- цельнолитой бесшовный бачок скрытого монтажа; -- клавиша смыва TEYMI LINA T70105, цвет ЧЕРНЫЙ МАТОВЫЙ, ОКАНТОВКА ХРОМ; -- унитаз подвесной безободковый Teymi Helmi Pro Vortex T40310; -- сиденье с микролифтом; -- полный комплект арматуры для монтажа: уплотнительные кольца, манжеты, труба смыва, фановый отвод с удлинителем, защитный кожух ревизионного окна с крепежной рамкой, закрывающей панелью и крышкой; -- полный комплект крепежа для установки: крепеж к стене, шпильки для унитаза, крепежная рамка, соединительные шпильки, толкатели, фиксаторы; -- инструкция по установке и обслуживанию.
Преимущества комплекта: -- полная (максимальная) комплектация для установки - больше ничего докупать не придётся; -- все составляющие комплекта идеально подходят друг к другу; -- рама покрыта суперпрочной порошковой краской синего цвета с антикоррозионными свойствами; -- высота монтажной рамы может регулироваться с помощью ножек из оцинкованной стали; -- универсальный монтаж – межосевое расстояние под шпильки для подвесного унитаза 180 и 230 мм – подходит ко всем подвесным унитазам; -- сливной бачок скрытого монтажа, изготовленный из полиэтилена низкого давления, рассчитан на 200 тысяч циклов смыва, а цельнолитая бесшовная конструкция позволит работать без протечек в течение всего периода эксплуатации; -- 2-режимный слив 3 / 6 л с возможностью регулировки;
-- лёгкость обслуживания бачка благодаря ревизионному окну, скрытому за клавишей смыва; -- гарантия 10 лет на весь комплект и 50 лет на стальную раму. Размер изделия: высота 1130 мм (регулируется) Х ширина 470 мм Х глубина 102 мм. Уважаемые покупатели, обращаем ваше внимание на то, что система инсталляции TEYMI AINA 55 может быть также укомплектована другими клавишами смыва или подвесными унитазами от бренда TEYMI (вы можете найти их на этом сайте по указанным артикулам).
Предлагаем вам рассмотреть варианты сочетания со следующими клавишами:
: HELMI хром T70202CH : HELMI черная T70203BM : HELMI белая T70018WM : HELMI нержавеющая сталь T70204 : HELMI черный матовый T70205 : HELMI белый глянцевый T70206 : LINA хром T70102CH : LINA черная T70103BM : LINA белая T70019WM : LINA нержавеющая сталь T70104 : LINA черный матовый T70105 : LINA белый матовый T70106 : AINA хром T70012CH : AINA черная T70013BM : AINA белая T70020WM : AINA нержавеющая сталь T70014 : KATI хром T70701CH : KATI черная T70702BM : KATI белая T70021WM : ELLIE хром T70022CH : ELLIE черная T70023BM : ELLIE белая T70024WM
Также просим обратить взгляд на наши лучшие безободковые подвесные унитазы:
: SOLLI T40201 : LINA S T40102 : HELMI S T40302 : HELMI VORTEX T40303 : IVA T40601 : ELLIE T40802 : LINA MEDIA T40105 : KATI T40701 : HANNA PRO T40901 : HELMI S BLACK T40302MB : VITRA PRO T40806 : VITRA T40804 : DEMI T40208 : LINA VORTEX T40110 : RITTA T40809 : LINA PRO T40106 : LINA S BLACK T40111
Характеристики
Другие товары
Инсталляция с унитазом комплект 5 в 1 Teymi F16214 унитаз подвесной безободковый Helmi Pro Vortex кнопка черная/хром (92737758) в Воронеже
Инсталляция с унитазом комплект 5 в 1 Teymi F16214 унитаз подвесной безободковый Helmi Pro Vortex кнопка черная/хром и другие товары категории подвесные унитазы доступны в каталоге интернет-магазина Лемана ПРО в Воронеже по цене 18 820 ₽. Ознакомьтесь с подробными характеристиками и описанием, а также отзывами о данном товаре, чтобы сделать правильный выбор и заказать товар онлайн.
Купите такие товары, как Инсталляция с унитазом комплект 5 в 1 Teymi F16214 унитаз подвесной безободковый Helmi Pro Vortex кнопка черная/хром, в интернет-магазине Лемана ПРО, предварительно уточнив их наличие. Вы можете получить товар в Воронеже удобным для Вас способом, для этого ознакомьтесь с информацией о доставке и самовывозе.
Вы всегда можете сделать заказ и оплатить его онлайн на официальном сайте Лемана ПРО в России. Для жителей Воронежской области у нас не только низкие цены на такие товары, как "Инсталляция с унитазом комплект 5 в 1 Teymi F16214 унитаз подвесной безободковый Helmi Pro Vortex кнопка черная/хром", но и быстрая доставка в такие города, как Бобров, Богучар, Борисоглебск, Бутурлиновка, Воронеж, Калач, Кантемировка, Лиски, Новая Усмань, Нововоронеж, Новохопёрск, Острогожск, Павловск, Поворино, Россошь, Семилуки, Эртиль.
Оплата, доставка и возврат в Лемана ПРО
Оплата
- Банковские карты (Visa, Mastercard, МИР).
- Яндекс Сплит — оплата частями.
- Кредит без переплат — программа кредитования в магазинах при выполнении условий.
Доставка и самовывоз
- Доставка по России, стоимость зависит от региона, зоны и веса заказа.
- Самовывоз из ближайшего магазина бесплатно.
Условия доставки уточняются при оформлении, доставка «день в день» возможна во всех гипермаркетах. При самовывозе можно проверить товар перед получением.
Возврат товара
- Возврат товара надлежащего качества — в течение 100 дней.
- Для владельцев Ключ-карты — до 1 года.
- Для собственных марок — до 1 года, а при Ключ-карте или Ключ-карте ПРО — до 2 лет.
Круглосуточная клиентская поддержка 8 800 700-00-99


